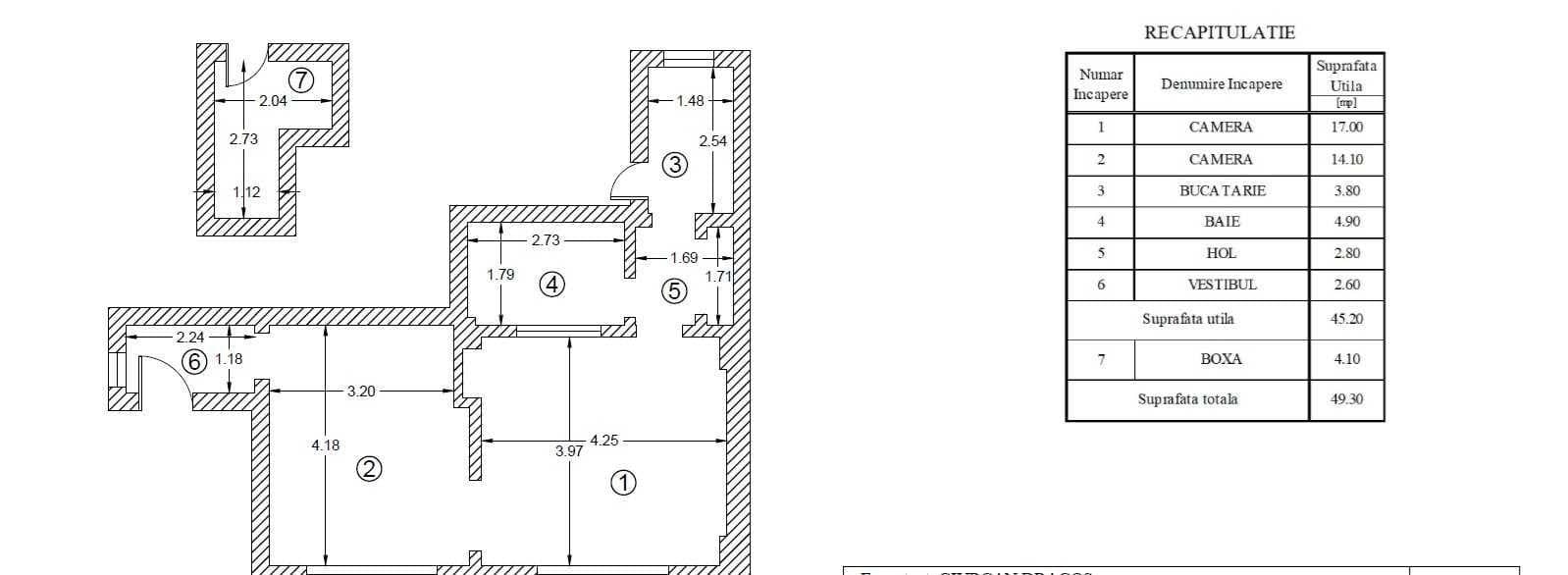
Vand apartament 2 camere, foarte spatios, cu un living generos, bucatarie separata, balcon de 15 mp, Incalzirea se face prin calorifere, cu o centrala noua Viessmann de 24 kw foarte silentioasa. Suprafata totala este de 78 mp + boxa subsol de 2,1mp. A fost folosit ca si cabinet de psihologie,si se preteaza foarte bine atat ca spatiu de locuit, dar si ca birou. Zona este una linistita, are in vecinatate mai multe scoli, si este la 6 minute de mers pe jos de statia de metrou Obor







