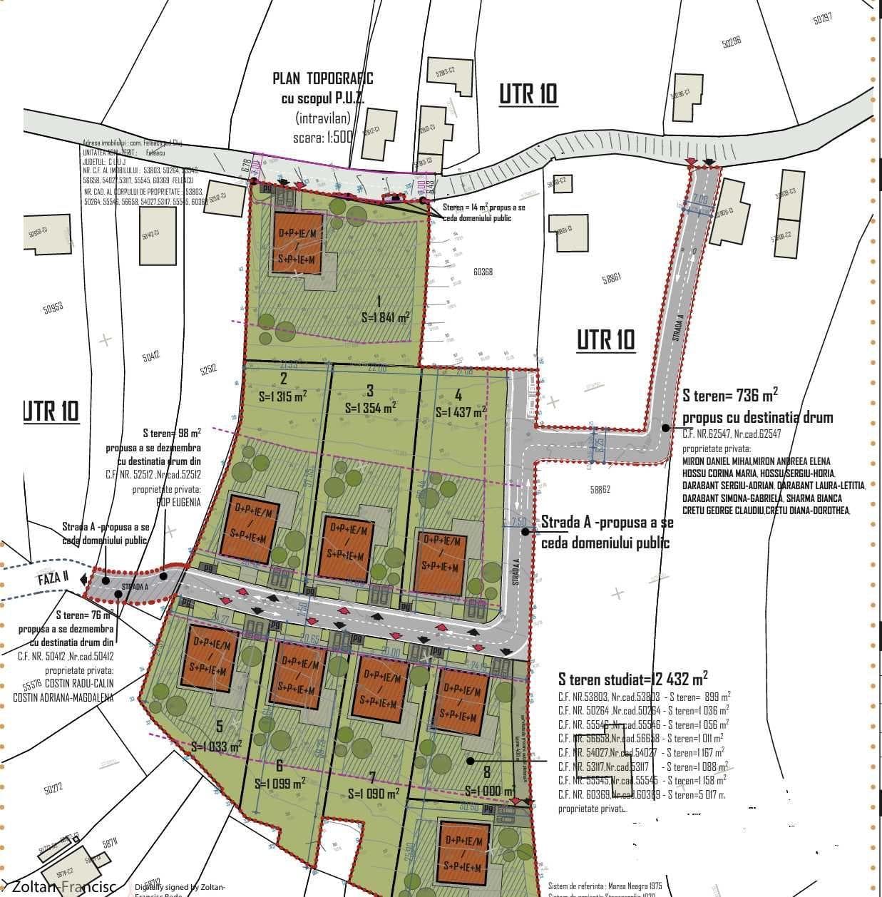
Teren intravilan în Feleacu, situat intr-o zona frumoasa, liniștită, cu vegetație bogata, cu vedere spre oras, in apropierea manastirii Stavroanastasis. Este pretabil pentru construirea unei case unifamiliale sau a unui duplex. Terenul are deschidere la doua drumuri pietruite, in planul de asfaltare pentru 2026, un front având 43ml iar celălalt 47ml, cu toate utilitățile la limita proprietății. Este împrejmuit cu gard viu de lemn cainesc si e plin de arbori cum ar fi stejari, frasini, arțari, arini, nuci, pruni, salcii, aluni și gutui. A fost autorizat pentru construirea unei case unifamiliale, autorizație care a expirat fără demararea lucrărilor.













